設備・備品
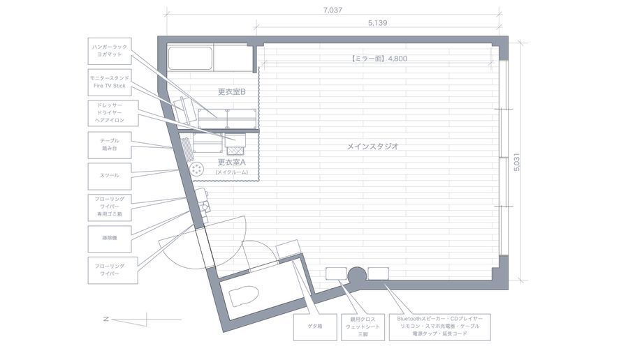
幅5m×奥行5mのフロアに、幅4.8mの大型ミラーを設置。
天井にはRa96の高演色LEDスポットライトを採用。 肌や衣装の色を自然に美しく映し出すので、レッスン風景の記録やダンス動画の撮影もワンランク上の仕上がりに。
ミラー下部にはカラーLEDも備えており、ブルーやパープルなど空間の演出も楽しめます。
間取り図

設備
| スタジオ広さ | 35㎡ |
| 定員 | 最大6名 |
| 鏡 | 幅4.8m |
| 天井 | Ra96高演色LEDスポットライト |
| 床 | フローリング |
| Wi-Fi | あり |
| エアコン | 1台 |
| 空気清浄機 | 1台 |
| 着替えスペース | 2部屋 |
| トイレ | あり(男女共用) |
| テープライト | あり |
備品
| モニター | 1台 |
| Bluetoothスピーカー | 1台 |
| CDプレイヤー | 1台 |
| スマホ三脚 | 2本 |
| ヨガマット | 9枚 |
| テーブル | 2台 |
| 椅子 | 6脚 |
| 延長コード | 1本 |
| HDMIケーブル | 1本 |
| ドライヤー | 1台 |
| ヘアアイロン | 1台 |












無料で使える備品を取り揃えました。もし追加希望の備品などありましたらご意見お待ちしています!


























